Штурмовое орудие Sturmgeschütz III

Создан на базе танка PzKpfw III

Годы производства 1940 — 1945 г.г.
Выпущено 9240 шт

Модификации

StuG III 0-serie (s.Pak) — ранний вариант САУ (1937 год). Выполнена на базе Pz. III Ausf. B, с рубкой выполненной из не броневой стали. Вооружён короткоствольной 75-мм пушкой Stu.G. 7,5 cm K. Выпущено 5 штук. Использовались в учебных целях до 1941 года.
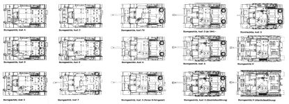
StuG III Ausf. A — первый серийный вариант САУ (январь 1940 год). Лобовое бронирование 50 мм, вооружён короткоствольной 75-мм пушкой с длиной ствола 24 калибра Stu.G. 7,5 cm K. С января по май 1940 г. фирмой Daimler-Benz выпущено 30 машин. Последние 6 из них поступили в бригаду "Leibstandarte SS Adolf Hitler". После этого производство перенесли на Alkett, которая занималась этим вплоть до последних дней войны. Для возмещения переданных СС установок, из серии линейных танков Pz III Ausf. G были взяты 8 шасси, которые в сентябре 1940 года переделали на Daimler-Benz в штурмовые орудия. В связи с тем, что лобовая броня танка составляла лишь 30 мм, она была усилена дополнительным 20-мм листом, закреплённым болтами. Несмотря на то, что зачастую в литературе эти машины относят к модификации Ausf. B, в архивных документах они указываются как Ausf. A, поскольку все так же были оснащены 10-скоростной коробкой передач Maybach SRG 328 145. Окончательно машины были сданы в январе 1941 года. 6 из них поступили на вооружение 666-й батареи штурмовых орудий.
StuG III Ausf. B (июль 1940 года). Лобовое бронирование 50 мм, вооружён короткоствольной 75-мм пушкой Stu.G. 7,5 cm K. Основное отличие этой модификации от предыдущей состояло во введении более широких гусениц (шириной 38 см), широкой звёздочки и опорных катков, а также новой 6-скоростной коробки передач ZF SSG 77 Aphon. С июля 1940 по апрель 1941 года двумя сериями выпущено 300 установок.
StuG III Ausf. C (апрель 1941 года). Упрощена конструкция рубки. Введён новый перископический прицел орудия SflZF-1, что так же потребовало изменить конструкцию люка наводчика. В апреле — мае 1941 года выпущено 50 машин.
StuG III Ausf. D (май 1941). Единственное установленное отличие от предыдущей модификации — установка электрозвонка у правого уха механика-водителя, для подачи сигналов командиром, а также впервые применена технология закалки лобовых деталей брони. Три самоходных орудия этого типа были отправлены в Африку и использовались германским африканским корпусом. С мая по сентябрь 1941 года выпустили 150 единиц.
StuG III Ausf. E (сентябрь 1941 года). Эта модификация была разработана как командирская машина, с улучшенной аппаратурой связи, что потребовало установки с обеих сторон рубки и увеличения бортовых ниш для установки радиоаппаратуры. Машина оснащена дополнительной радиостанцией и антенной. С сентября 1941 по февраль 1942 года выпустили 284 установки.
StuG III Ausf. F (март 1942 года). Первый крупносерийный вариант, начиная с которого САУ стала также известна под обозначением StuG 40. Увеличены противотанковые возможности машины, лобовое бронирование последних машин доведено до 80 мм путём наваривания 30-мм дополнительных бронеплит. На первых 120 машинах устанавливалась 75-мм длинноствольная пушка Stuk 40 с длиной ствола 43 калибра (L/43), на последующих StuG 40 — L/48. Установлен вентилятор на крыше рубки для уменьшения загазованности боевого отделения. С марта по сентябрь 1942 года выпущено 366 машин.
StuG III Ausf. F/8 (сентябрь 1942 года). Лобовое бронирование 80 мм. Дополнительные 30-мм бронеплиты крепились на болтах. Устанавливалась 75-мм длинноствольная пушка Stuk 40 L/48. С сентября по декабрь 1942 года выпущено 250 установок. Цифра 8 в наименовании установки означала толщину лобовой брони в сантиметрах.
StuG III Ausf. G (декабрь 1942 года). Самая массовая модификация. Установлена 75-мм пушка Stuk 40 L/48. Усиление бронезащиты обеспечивалось броневыми экранами, прикрывавшими ходовую часть и борта машины. Дистанционно управляемый пулемёт для борьбы с пехотой. Alkett начал производство в декабре 1942 года. Всего с декабря 1942 по апрель 1945 года произведено порядка 7800 машин.

Изображения

Силуэт Stug IIIСилуэты Sturmgeschütz III различных модификаций

Stug III Ausf.A

Чертеж Stug III Ausf.A

Stug III Ausf.D

Чертеж Stug III Ausf.D

Stug III Ausf.E

Силуэт Stug III Ausf.E

Stug III Ausf.F

Чертеж Stug III Ausf.F

StuG III Ausf. G

 StuG III Ausf. GStuG III Ausf. GStug III Ausf.GЧертеж Stug III Ausf.GСилуэт StuG III Ausf. G