Трамвай ЛВС-2009 (71-154)

Годы выпуска 2008 — 2012 г.г.
Выпущено 11 шт

Модификации:

71-154 — трамвайный вагон двустороннего (челночного) движения с асинхронным приводом

71-154М — трамвайный вагон одностороннего движения с асинхронным приводом

Технические характеристики

Характеристики
Масса 42 т
Мест для сидения 50 / 56
Номинальная вместимость 225 / 231 (5 чел/м²)
Полная вместимость 330 / 336 (8 чел/м²)
Напряжение сети 550 В
Количество дверей 10 / 6
Освещение салона люминесцентное, типа «световая полоса»
Отопление кабины климат-контроль
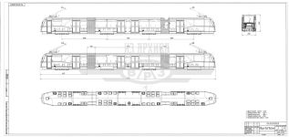
Габариты
Колея 1524 мм
Длина 31500 мм
Ширина 2550 мм
Высота 3150 мм
Диаметр колёс 620 мм
Двигатели
Тип двигателя 8 х асинхронный Pragoimex TAM 1004 C
Мощность 90 кВт

Изображения

Трамвай ЛВС-2009 (71-154)Трамвай ЛВС-2009 (71-154)Трамвай ЛВС-2009 (71-154)Салон трамвая 71-154Кабина трамвая 71-154Чертеж трамвайного вагона 71-154 (ЛВС-2009)


Правообладателям